
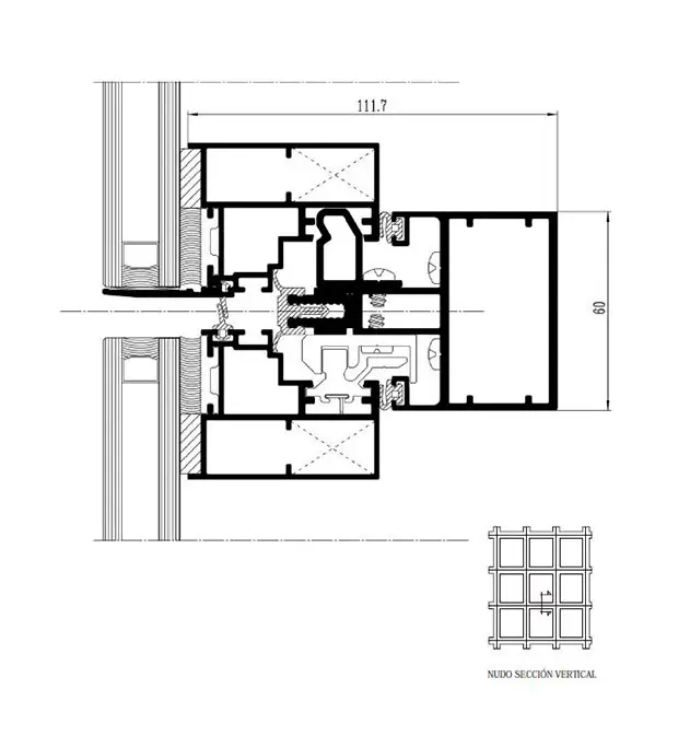
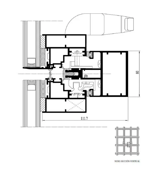
EMC-60 EB
- Sistema tradicional de fachadas ligeras autoportantes.
- Se caracteriza por la presencia del aluminio en el exterior de la fachada.
- La retícula está marcada por las tapetas horizontales y verticales.
- El vidrio se sujeta perimetralmente a los montantes y travesaños, mediante perfiles presores atornillados a los mismos.
- Acristalamiento máximo hasta 45 mm.
- Profundidad de galce 22 mm.
Resultado del ensayo
| Rendimiento: EMC ensayado de: 9 módulos, dimensiones totales 3.660 x 3.600 mm, superficie total 13,176m2 y acristalamiento doble 4+4/16/6. Con una proyectante de 1.190 x 1.190 mm, superficie total 1,41 m2 con el mismo vidrio. | |
|---|---|
| Permeabilidad al aire partes fijas (EN 12153:2000) | Clase AE |
| Permeabilidad al aire partes móviles (EN 12153:2000) | CLASE 3 |
| Estanqueidad al agua bajo presión estática (EN 12155:2000) | CLASE RE 750 |
| Resistencia a la carga de viento (EN 12179:2000) | apta |
| Aislamiento acústico (EN ISO 140-3:1995/A1) | RW (C;Ctr)=36 (-1;-3) Db |
| Coeficiente de transmisión térmica (EN 13947:2006) | 2,8 W/m2K |
| Resistencia al impacto Exterior/Interior (EN 14019:2004) | E3 I3 |
| Resistencia a cargas vivas horizontales (EN 1991-1-1:2003) | No se aprecian roturas ni deformaciones. |
*TECNALIA
*Ensayo acústico/térmico condicionado al vidrio utilizado












